Vous êtes un particulier et avez un projet de construction ?
Pour votre projet, en plus des études traditionnelles (architecte, béton…) vous pourrez avoir besoin de trois types d’études :
- Géotechnique : pour bien adapter votre projet au terrain et optimiser le coûts des travaux. Cette étude G2 vous sera demandée pour obtenir votre assurance dommage ouvrage Elle est obligatoire si votre terrain est soumis à un risque naturel (glissement, chute de blocs…) et donne lieu à l’édition d’une attestation PCMI14 à joindre au permis de construire.
- Hydraulique : si le réseau d’eau pluviale communal est saturé ou absent, et si votre terrain ou ceux en aval sont soumis à un risque d’inondation,
- Assainissement : si votre terrain n’est pas relié au réseau communal d’eaux usées.
Ces études se basent sur des reconnaissances appropriées : essais de pénétration dynamique, sondages à la pelle mécanique ou à la tarière, essais d’infiltration, visites sur site…
Comment demander un devis ?
La demande se fait de préférence par email à l’adresse devis@aingt.fr car nous avons besoin de certains documents (plan de masse, coupes, plan de situation…) pour établir un devis adapté à votre projet. Elle peut aussi se faire par courrier.
Nous restons bien sûr à votre disposition par téléphone pour tout renseignement complémentaire et vous conseiller dans votre démarche.
Devons-nous nous déplacer pour faire le devis ?
Dans la majorité des cas, nous n’avons pas besoin de nous déplacer pour établir le devis.
Une visite pourra être nécessaire pour vérifier les conditions d’accès selon les caractéristiques du terrain (pente, végétation, largeur de passage, carrossabilité…).
Quels documents nous transmettre ?
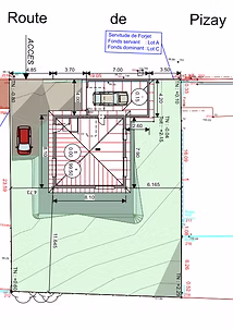
Pour les études de sol et les études d’assainissement pluvial :
- Plan de situation (extrait cadastral, carte IGN…) pour localiser le terrain et faire notre recherche documentaire,
- Plan topographique, plan de masse et coupes (si disponibles).
Pour les études d’assainissement non collectif (ANC) :
- Position envisagée pour le système de traitement.
- Mêmes documents que précédemment,
Comment vous procurer ces documents ?
Ces documents font partie du dossier de permis de construire. Ils vous sont normalement fournis par votre architecte ou votre constructeur.
S’il ne sont pas encore disponibles ou que votre projet est à l’état d’esquisse, vous pouvez transmettre les documents de base qui sont le plan de situation et l’implantation de votre projet sur le terrain.
Vous pouvez facilement éditer ces documents de base grâce aux sites listés à la page Liens utiles.
Première prise de contact
Exemple des documents à nous fournir pour l’étude de votre dossier

Carte IGN

Plan topographique

Plan de masse